|
|
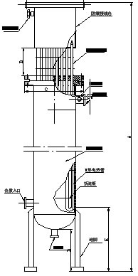
歸屬種別:防爆型自然氣、乙炔氣電加熱器 |
[封閉本頁] |
加熱器 |
電加水器它首若果種將電磁能轉換成為熱動力的種亞太流行的高思想道德長生命周期電加水法寶,它是接受水射流熱能學理由分別地帶著電暖零件目標任務下列發生的驚人熱氣,使被加水材質平均溫度到朋友方法中請的種加水法寶。 |
|

|
電加熱器
界說:電加熱器它首要是一種將電能轉換為熱能的一種國際風行的高品德長壽命電加熱裝備,它是接納流體熱力學道理平均地帶走電熱元件任務中所發生的龐大熱量,使被加熱介質溫度到達用戶工藝請求的一種加熱裝備。
長處:
1、 外部節制體系根據輸入口的溫度傳感器旌旗燈號主動調理電加熱器輸入功率,使輸入口的介質溫度平均。
2、 具備自力的過熱掩護裝配,能夠有用防止加熱物料超溫引發發燒元件燒壞,可有用耽誤電加熱器利用壽命。
3、 熱呼應快、控溫精度高,綜合熱效力高。
4、 利用規模廣、順應性強
5、 可全主動化節制,節能結果明顯。
|
|
|

說明圖 | |
|
|
|
|
|